产品中心

![[name] [name]](http://542x765125.bcc.eiewz.cn/uploadfile/20210809/202108091132491890305.jpg)
![[name] [name]](http://542x765125.bcc.eiewz.cn/uploadfile/20210809/202108091132496717209.jpg)
![[name] [name]](http://542x765125.bcc.eiewz.cn/uploadfile/20210809/202108091132496619682.jpg)
![[name] [name]](http://542x765125.bcc.eiewz.cn/uploadfile/20210809/202108091132499793495.jpg)
![[name] [name]](http://542x765125.bcc.eiewz.cn/uploadfile/20210809/202108091132495190913.jpg)
![[name] [name]](http://542x765125.bcc.eiewz.cn/uploadfile/20210809/202108091132513689752.jpg)
外遮阳织物卷帘用于建筑外遮阳时,可以增加外立面效果,并且既起到遮阳效果,也有良好的通透性,同时具有良好的耐候性,布料颜色可根据色样选择。具有良好的遮阳遮光性能。
外遮阳织物卷帘用于建筑外遮阳时,可以增加外立面效果,并且既起到遮阳效果,也有良好的通透性,同时具有良好的耐候性,布料颜色可根据色样选择。具有良好的遮阳遮光性能。
外遮阳织物卷帘适用于别墅家居,住宅,酒店,办公楼等场所。
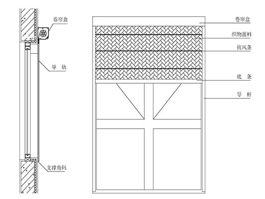
1、抗风性能。
在面料上安装防风条,使面料沿着导轨运动,不被风吹出导轨,抗风性能优良。
智博外遮阳织物卷帘面料具有比例的透孔率,从而释放了部分风压,增加面料的风载力。
2、遮阳阻热性能
智博遮阳面料能够阻挡UVB射线,过滤太阳光,降低太阳能吸收,达到遮阳隔热的效果。
3、耐候性能
型材机构耐候性能:机构骨架采用全铝合金,型材表面喷涂,达到标准要求。
面料耐候性能:智博遮阳面料采用具有阻燃能力的纤维面料,具有不褪色,防霉、防水、防油,轻松面对外界恶劣气候的功能。
4、稳定性能
面料自身材料决定其不具有延展性,不会变形,并持久保持其平整度。抗撕拉,不需加固,自然抗撕,有显著的抗风和经受频繁使用的性能。
01隐蔽性好
智博外遮阳织物卷帘产品颜色多样性,可做到与铝合金、塑钢窗颜色一致,连接紧固,大限度地保护建筑物的外立面美观度。
02维修、拆洗简单方便
智博外遮阳织物卷帘罩壳的两端设有可拆卸式的尼龙扣件,如需拆下罩壳,只需推动扣件皆可;面料的更换、清洗也十分方便。
03通风观景
面料具有透孔率,在达到国家规定遮阳率的同时,不影响通风观景。
04安装方便
智博外遮阳织物卷帘安装时人只需要在室内实行安装操作,从而更方便、快捷。